八王子市中野町戸建(JTI) 1-2階
ファミリー向けのポイント、八王子市立清水小学校が徒歩10分のところにあります。洗面所が独立しているので、ニーズの高い物件です。こちらは家賃10.5万円の物件です。住みやすい環境が嬉しい賃貸物件です。この先も、実りある充実した生活を送りたいですよね。新しい生活を始めて、さらに楽しい環境に変えていきませんか。新たな住まい探しは当社がサポート致します。
- 賃料
- 10.5万円
- 間取り
- 3LDK
- 専有面積
- 92.74㎡
- 所在階
- 1-2階
- 管理費・共益費
- -
- 敷金
- 0ヶ月
- 礼金
- 0ヶ月
-
情報の見方
担当者のコメント 多摩営業所朝日リビング(株)

- 室内設備はシステムキッチン・追い焚きなどが揃っているので、快適に過ごしやすいお部屋になります。嬉しい豊富な収納で、生活スペースを広く確保できます。女性も安心できる脱衣所が設置されています。クロゼットが2ヶ所にあり、収納スペースも豊富にあります。新しい暮らしをお考えの方はどんな住まいをお求めですか。ぜひ当社にお客様のご希望をお聞かせ下さい。当スタッフが住まい探しを誠心誠意お手伝いさせていただきます。
ポイント・特徴
物件概要
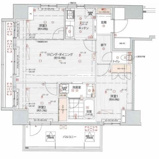
【一戸建て】 物件番号:73774497 情報更新日:2026年03月12日 次回更新予定日:2026年03月26日所在地 東京都八王子市中野町2158-14 交通 間取り/詳細 3LDK
LDK 17.5帖/洋室 6.5帖/洋室 6.0帖/洋室 5.3帖面積/バルコニー面積 92.74㎡/- 賃料 10.5万円 管理費・共益費 - 敷金/礼金/保証金 0ヶ月/0ヶ月/- 償却/敷引 -/- 更新料 - 敷金積み増し - 権利金/雑費 -/- 駐車場/月額料金 -/- 保険加入/料金 有/20,000円 保険名/保険期間 火災保険/2年 保証人代行義務/利用料 必加入/ 初回保証料:賃料等50% 以降毎年更新料:10,000円 保証会社 その他 保証会社詳細 - 向き 南東 築年月(築年数) 2005年 3月 (築21年) 契約期間 定期借家 3年 種別/構造 一戸建て/木造 部屋/所在階/階建 -/ 1-2階/ 2階建 総戸数 - 現況/入居可能日 居住中/相談 特優賃 - 取引態様/賃貸区分 専任媒介/定期借家権 物件番号 73774497 取引条件の有効期限 2026年03月26日 設備条件 - ペット相談
- 楽器相談
- ファミリー向け
- 室内洗濯機置場
- プロパンガス
- 公営水道
- 公共下水
- 電気有
- ガスコンロ
- コンロ2口以上
- システムキッチン
- コンロ3口
- バス・トイレ別
- 追焚機能浴室
- 洗面台
- トイレ2ヶ所
- シャワー
- 独立洗面台
- ウォークインクロゼット
- 収納豊富
備考 新生活を失敗せず、スタートさせたいならこちらの「八王子市中野町戸建(JTI)」はいかがでしょうか。一戸建ての洗面所は独立したタイプで、快適にお使いいただけます。お客様のご都合のいい引っ越し日時をご相談くださいね。友人やお客さんを呼びたくなる、そんなお気に入りのお家にしませんか。こちらから、新たな住まい探しを開始しましょう。まずはご希望の条件をお聞かせください。 取扱会社 - 多摩営業所
- 東京都多摩市落合1丁目9-1 多摩センタービル 1階
- TEL:0120-330-730
- 国土交通大臣 (13) 第2135号
建設業 東京都知事許可 (般-29) 第128493号
一級建築士事務所 東京都知事登録 第51176号 - (公財) 東日本不動産流通機構
(公社) 全日本不動産協会
(一社) 全国住宅産業協会
日本木造住宅耐震補強事業者協同組合
(公財) 日本賃貸住宅管理協会
※地図上に表示される物件の位置は付近住所に所在することを表すものであり、実際の物件所在地とは異なる場合がございます。
物件お問い合わせ
この物件を見た方へのお勧め物件
- 京王北野マンションD棟
- 11万円 3LDK/69.35㎡
- 東京都八王子市打越町
- 京王線「北野」駅 徒歩3分
- メゾン ラフォーレ
- 9.7万円 1LDK/39.32㎡
- 東京都八王子市大塚
- 多摩都市モノレール「大塚・帝京大学」駅 徒歩2分
- 八王子市中野山王3丁目戸建
- 13.5万円 4LDK/100.81㎡
- 東京都八王子市中野山王3丁目
- 中央線「八王子」駅
- プレシャスハーモニー八王子
- 17.4万円 3LDK/62.22㎡
- 東京都八王子市八日町
- 中央線「八王子」駅 徒歩12分
- ライオンズ多摩センター 翠彩の杜
- 22万円 4LDK/101.27㎡
- 東京都八王子市鹿島
- 多摩都市モノレール「松が谷」駅 徒歩1分







